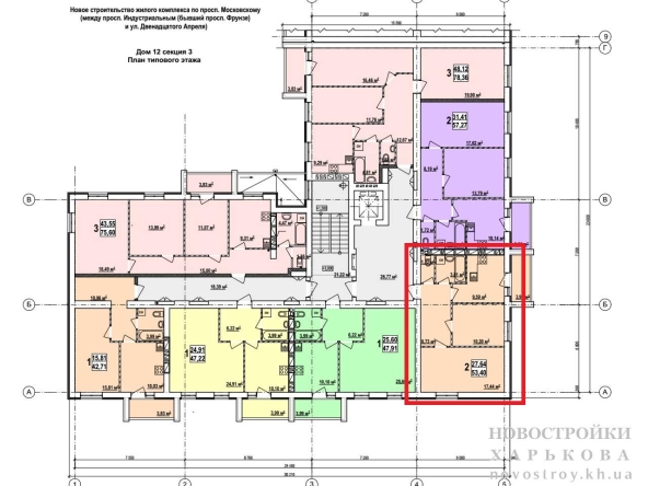
У продажу 2к в зданій новобудові ЖК Миру -3 Метро Індустріальне, метро ХТЗ 5\9 пов. Загальна площа 74 м2 Будівельний […]
ДетальнішеПродам 2-кімнатну квартиру на Павловому Полі Адреса: вул. Вартових Неба (Тобольська), 37 Параметри: • загальна площа — 44 м² • […]
ДетальнішеОдне з найкращих Планувань! Продам реальну 1 кім. квартиру в новому комплексі новобудов ЖК “Гідропарк”, адреса: вул. Борткевича, 11 – […]
ДетальнішеВперше у продажу! 1й двір, Рідкісна Пропозиція! Квартира з документами! Продам простору 2 кімнатну квартиру в новому житловому комплексі новобудов […]
ДетальнішеНовинка! Рідкісна пропозиція! Можна під Є-Сертифікат! Продам нову, простору 3 кімнатну квартиру в новому комплексі новобудов ЖК “Миру-4”, за адресою: […]
ДетальнішеУ продажу 2 поверховий будинок з усіма зручностями, розташований на Холодній горі. Будинок утеплений, оснащений всіма необхідними меблями та комунікаціями. […]
ДетальнішеРІДКІСНА ПРОПОЗИЦІЯ НА КОМПЛЕКСІ! ЖК Миру 4! Комплекс давно зданий та обжитий! Після ремонту ніхто не жив! Сертифікат-ТАК! Продам КЛАСНУ […]
ДетальнішеДо Вашої Уваги! Ексклюзивна Пропозиція ! Вашій Увазі!!! Продам 2х Рівневу Квартиру В новинному районі ЖК Салтівський на 602 мікрорайоні. […]
ДетальнішеПродам 2-кімнатну квартиру в Новобудові ЖК Гідропарк, по вулиці Борткевича 15. Будинок зданий, можна приступати до ремонту. Квартира в будівельному […]
Детальніше