ЖК Левада, Метро Гагаріна, ЦЕНТР! БУДИНОК ЗДАНИЙ! Продам 2 кімнатну квартиру S=71 м2 id: 697664548446

, , Новобудови, Основ'янський, вул. Заливна, ЖК "Левада - 2"
  • $ 40,000

Огляд

  • 2
  • Кімнат
  • 5/16
  • Поверховість
  • 46
  • м²
  • 419266
  • Ідентифікатор об'єкту

Опис

ЖК Левада, Метро Гагаріна, ЦЕНТР!
БУДИНОК ЗДАНИЙ! ПРИСВОЄНА ПОШТОВА АДРЕСА! МОЖНА РОБИТИ РЕМОНТ!
ДОКУМЕНТИ ОТРИМАЄТЕ НА УГОДІ!
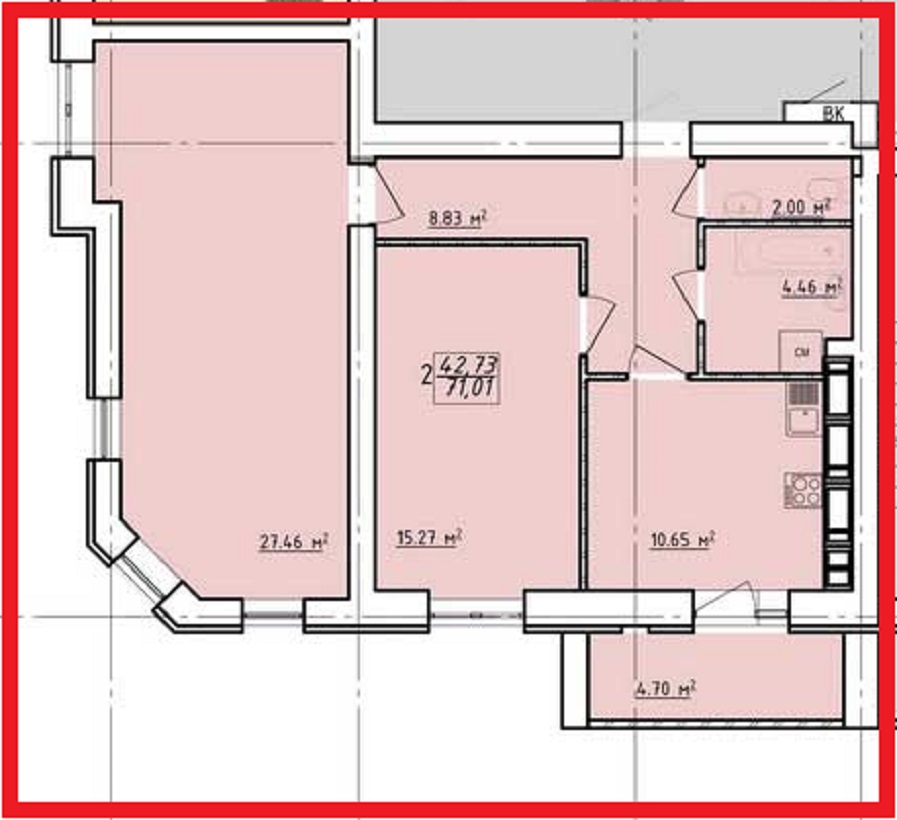
Продам 2 кімнатну квартиру S=71 м2
Будинок комфорт-класу, 2 ліфти, побудований з білої цегли, утеплений мінеральною ватою!
Комплектація від забудовника: МП вікна, радіатори, вхідні двері, радіатори, горизонтальне розведення опалення, що дозволяє підключити лічильник опалення, міжкімнатні перегородки, фасад утеплений.
Комплекс розташований у центральній частині міста!
Поруч із комплексом: метро, ТРЦ КЛАС, сквер Стрілка, школи, дитячі садки
Територія комплексу облагороджена, дитячими та спортивними майданчиками!
Забудовник комплексу АТ ЖИТЛОБУД-1
Повний супровід угоди до отримання документів на руки!
Показ у зручний для вас час!

Адреса

  • Адреса вул. Заливна
  • Район Основ'янський
  • Тип Новобудови
  • ЖК ЖК "Левада - 2"

Деталі

Оновлено на 28 Січня, 2026 при 10:51 am
  • Ідентифікатор об'єкту: 419266
  • Ціна: $ 40,000
  • Розмір нерухомості: 46 м²
  • Кімнат: 2
  • Поверховість: 5/16
  • Спальня/кухня м2: 20/12

Порівняти оголошення

Порівняйте
Євген Бєсєдін
  • Євген Бєсєдін