Продам новий будинок в Пісочині, 120м2, 10 соток. Сан.Роща id: 89786454631236

, , Будинки, Харківський, вул. Новоолешківська,
  • $ 125,000

Огляд

  • 3
  • Кімнат
  • 1
  • Поверховість
  • 120
  • м²
  • 422105
  • Ідентифікатор об'єкту

Опис

АН Альтаір, супровід угоди від перегляду до передачі ключів.
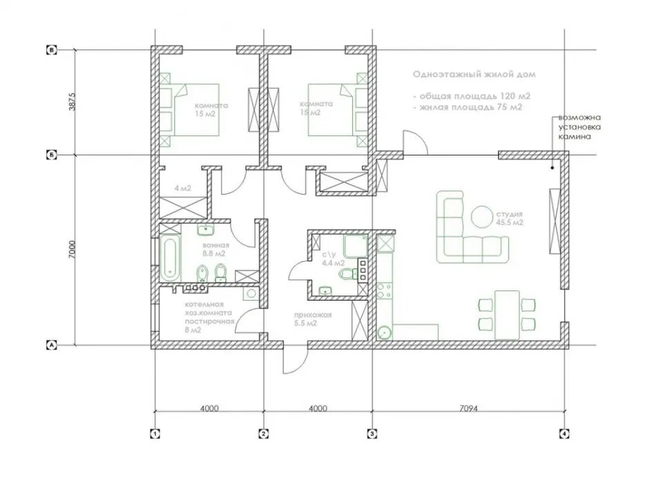
У продажу будинок в Пісочині, новобудова, 120 м2.
Локація: район санаторію Роща.
До міста 10 хвилин на авто.
Формат: вітальня з місцем під камін, 2 спальні, 2 санвузли, гардероб, котельня.
Водяні теплі підлоги.
Опалення електро 380В.
Газ відразу по вулиці.
Альтернативно: установка теплового насоса = 5000 дол.
Вікна преміальної серії.
Сантехніка та електрика вже зроблені.
Все готово для укладання плитки та чистової обробки.
Ділянка правильної форми 10 соток, хороша ергономіка двору.
Вода свердловина, каналізація септик.
Район і місце шикарне, асфальтований під’їзд до двору.
Охорона території.
Поруч магазини, санаторій Роща для прогулянок, відпочинку і купання влітку.
Є майстри для завершення ремонту.
Телефонуйте, показ у зручний час.

Адреса

  • Адреса вул. Новоолешківська
  • Район Харківський
  • Тип Будинки

Деталі

Оновлено на 24 Лютого, 2026 при 10:05 am
  • Ідентифікатор об'єкту: 422105
  • Ціна: $ 125,000
  • Розмір нерухомості: 120 м²
  • Кімнат: 3
  • Поверховість: 1
  • Спальня/кухня м2: 40/45

Порівняти оголошення

Порівняйте
Нізієнко Олексій
  • Нізієнко Олексій