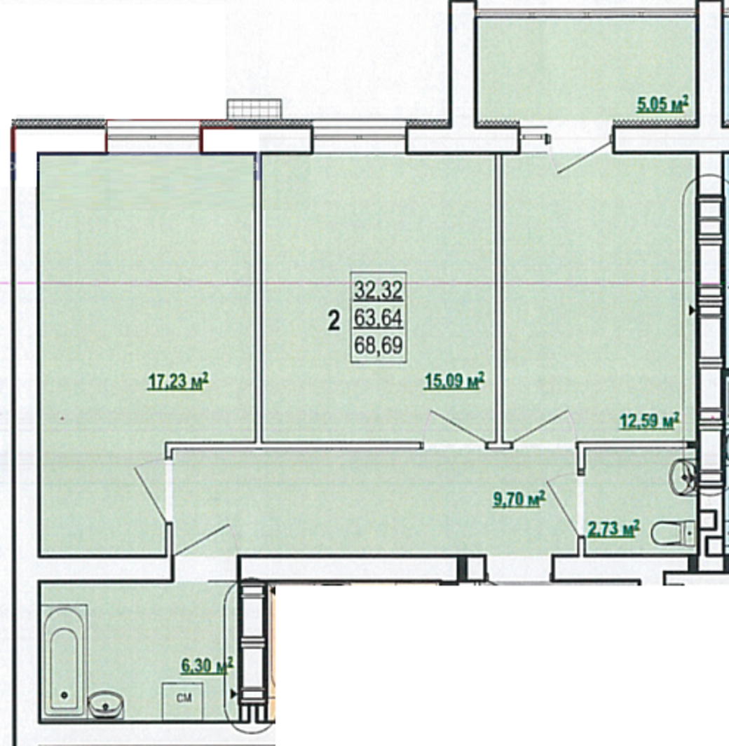
Продам 2-кімнатну квартиру в Новобудові ЖК ПЕРЕМОГИ 2, станція метро ПЕРЕМОГА.
Забудовник – ЖИТЛОБУД – 1
ДІМ 1
Будинок зданий, можна розпочинати ремонт. Квартира у будівельному стані, комунікації заведено.
У пішій доступності від комплексу – станція метро, зупинки громадського транспорту, супермаркети, ринок.
Телефонуйте, покажемо у зручний для Вас час.