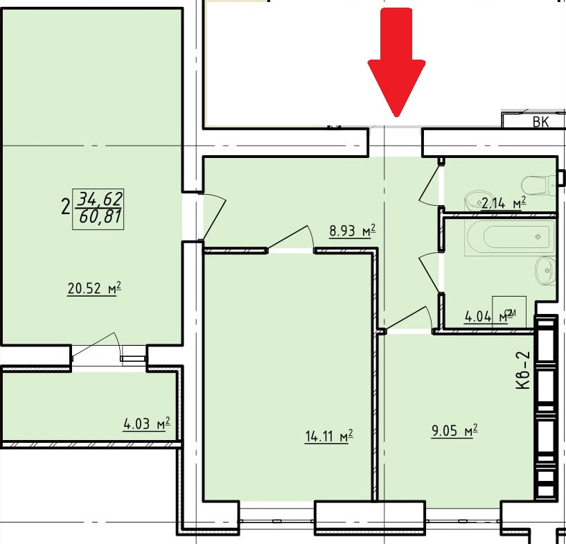
Продам 2 кімнатну квартиру S=61 м2, ЖК Левада, Метро Гагаріна, ЦЕНТР! id:4896763502

, , Новобудови, Основ'янський, вул. Заливна, ЖК "Левада - 2"
  • $ 41,000

Огляд

  • 2
  • Кімнат
  • 9/16
  • Поверховість
  • 61
  • м²
  • 406008
  • Ідентифікатор об'єкту

Опис

ЖК Левада, Метро Гагаріна, ЦЕНТР!
КРАЩУ ПРОПОЗИЦІЮ!
БУДИНОК ЗДАНИЙ!
ПРИСВОЄНА ПОШТОВА АДРЕСА!
Заливна 10
Продам 2 кімнатну квартиру S=61 м2
Комплектація від забудовника: МП вікна, радіатори, вхідні двері, радіатори, горизонтальне розведення опалення, що дозволяє підключити лічильник опалення, міжкімнатні перегородки, фасад утеплений.
Комплекс розташований у центральній частині міста!
Поруч вся інфраструктура для комфортного життя: метро, ТРЦ КЛАС, сквер Стрілка, школи, дитячі садки!
Територія комплексу облагороджена, дитячими та спортивними майданчиками!
Забудовник комплексу АТ ЖИТЛОБУД-1
Повний супровід угоди до отримання документів на руки!
Показ у зручний для вас час!

Адреса

  • Адреса вул. Заливна
  • Район Основ'янський
  • Тип Новобудови
  • ЖК ЖК "Левада - 2"

Деталі

Оновлено на 23 Вересня, 2025 при 9:42 am
  • Ідентифікатор об'єкту: 406008
  • Ціна: $ 41,000
  • Розмір нерухомості: 61 м²
  • Кімнат: 2
  • Поверховість: 9/16
  • Спальня/кухня м2: 40/10

Порівняти оголошення

Порівняйте
Євген Бєсєдін
  • Євген Бєсєдін