Новинка! Аналогів на комплексі немає! Можна під Є-Сертифікат! Продам реальну 2 кім. квартиру в новому комплексі новобудов ЖК “Райдужний”, адреса: пр-т Льва Ландау, 52А – Будинок Здано в 2019 р. – Обжит та Заселен.
Квартира знаходиться на 1-му поверсі 9ти поверхового будинку. Не торцева. Гарний вид з вікон у двір.
Квартира з тамбуром, при вході до під’їзду та на поверсі є відеоспостереження.
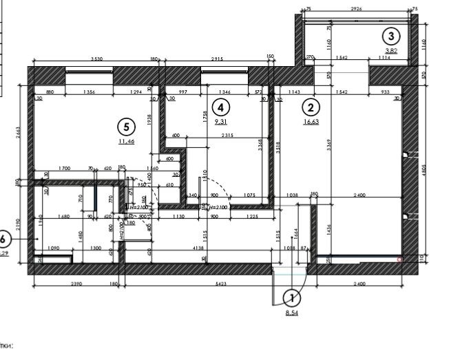
Загальна площа квартири – 52.9 кв.м, кухня – вітальня – 16.63 кв.м з виходом на балкони (об’єднаний, утеплений, тепла підлога), 2е роздільні кімнати – 9.31 кв м і 11.46 кв м, сан вузол спільний, просторий коридор, висота стелі.
Квартира з якісними чорновими роботами, все готове під чистове оздоблення. Зроблено перепланування згідно з дизайном проекту, якісне розведення електрики, сан техніки, каналізації, зроблено стяжку підлоги, штукатурку стін, сан вузол у плитці (встановлена ванна, інсталяція), нові вхідні двері. Встановлено лічильники на тепло, воду та світло.
Комплекс розташований у пішій доступності від метро Турбоатом – 10 хв.
Поруч зупинка наземного транспорту.
Це новий сучасний комплекс!
Уся територія комплексу облагороджена. Наземний паркінг. Є все для комфортного життя: магазин, кав’ярня, дитячий майданчик.
Телефонуйте! Показ за домовленістю. Повний супровід угоди.