Аналогів нема! ЖК Райдужний 2, Продам 2(3) кім квартиру пл 73м2, Під Чистову Оздоблення id:679479569863

, , Новобудови, Немишлянський, пр. Льва Ландау, ЖК Радужний
  • $ 55,000

Огляд

  • 2
  • Кімнат
  • 7/9
  • Поверховість
  • 73
  • м²
  • 405832
  • Ідентифікатор об'єкту

Опис

Аналогів на комплексі нема! Продам простору 2(3) кім. квартиру в новому комплексі новобудов ЖК “Райдужний – 2”, адреса: пр-т Льва Ландау, 52Л – Будинок Заселений та обжитий.

Найнадійніший Забудовник м Харкова – Житлобуд-1.

Квартира знаходиться на 7-му поверсі 9ти поверхового будинку. Не торцева. Двостороння. Гарний вид із вікон.

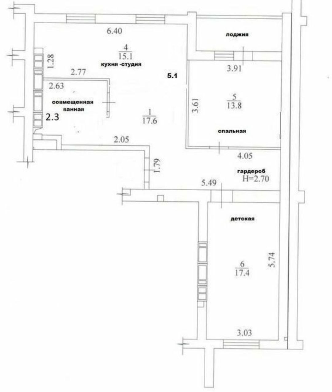
Загальна площа квартири – 73 кв.м, формат: кухня-вітальня – 23 кв м, спальня – 14 кв м, дитяча кімната – 17.5 кв м, простора вбиральня, спільний та просторий сан вузол.

У квартирі зроблено перепланування, виконані чернові роботи: машинна штукатурка, стяжка підлоги, тепла підлога у сан вузлі, балкон засклений. Встановлено лічильник на тепло та воду.

Квартира з документами.

Комплекс розташований у хорошому місці пішої доступності “Турбоатом”. Поруч зупинка наземного транспорту.

Це новий сучасний комплекс! Упорядкований двір. Наземний паркінг. Є все для комфортного життя.

Телефонуйте! Показ за домовленістю.

Адреса

  • Адреса пр. Льва Ландау
  • Район Немишлянський
  • Тип Новобудови
  • ЖК ЖК Радужний

Деталі

Оновлено на 15 Грудня, 2025 при 12:04 pm
  • Ідентифікатор об'єкту: 405832
  • Ціна: $ 55,000
  • Розмір нерухомості: 73 м²
  • Кімнат: 2
  • Поверховість: 7/9
  • Спальня/кухня м2: 32/23

Порівняти оголошення

Порівняйте
Світлана Корнюшкіна
  • Світлана Корнюшкіна