Вперше! Реальна пропозиція! Квартира з документами! Продам 2 кім квартира в новому комплексі новобудов ЖК “Пташка”, за адресою: вул. Барабашово, […]
ДетальнішеНова Пропозиція! Затребуване планування! Продам реальну 1 кім. квартиру в новому комплексі ЖК “Гідропарк”, за адресою: вул. Борткевича, 13 – […]
ДетальнішеАналогів нема! Можна під Є-програми! Продам реальну, простору 2 кім. квартиру (двобалконка) у новому комплексі ЖК “Райдужний”, за адресою: пр-т […]
ДетальнішеВперше! Квартира з документами! Продам 1 кімнатну квартиру в новому житловому комплексі новобудов ЖК “Миру 3”, за адресою: пр-т Героїв […]
ДетальнішеВперше! Реальна пропозиція! Будинок Сдан у 2023 р. – є всі комунікації, активно йдуть ремонти. Будинок Заселяється. Продам реальну 1 […]
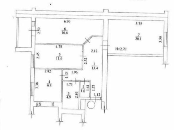
ДетальнішеРеальна пропозиція! Документи! Видова квартира! У продажі реальна 1 кім. квартира в новому комплексі ЖК “Пташка”, за адресою: вул. Барабашово, […]
ДетальнішеВперше! Будинок зданий 2021 р! Продам реальну 1 кім. квартиру в новому комплексі ЖК “Пташка”, адреса: вул. Барабашова, 10А – […]
ДетальнішеАналогів на комплексі вже нема! Продам простору 1 кім. квартиру в новому комплексі ЖК “Райдужний 2”, за адресою: пр-т Льва […]
ДетальнішеНова та Реальна пропозиція! Комплекс Новобудов біля метро “Тракторний завод”. Продам простору 1 кім квартиру в новому комплексі ЖК “Миру […]
ДетальнішеВперше! Можна під Є-Програми! Новий та обжитий комплекс новобудов ЖК “Райдужний 2”, в пішій доступності метро “Турбоатом”. Продам реальну 1 […]
Детальніше